Under Offer - Carson Road, Billericay, Essex | £900,000


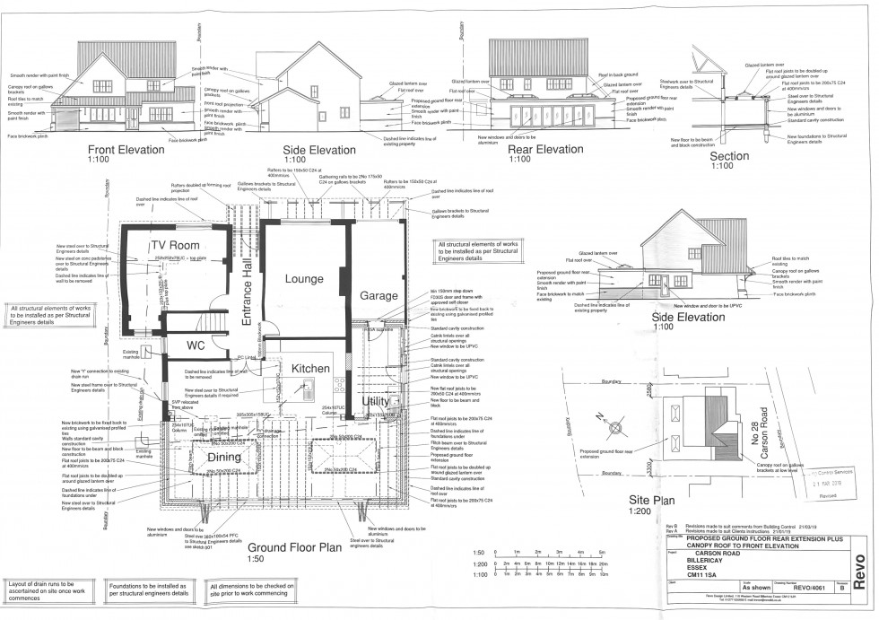
The Property Specialists are delighted to present this very well presented four-bedroom detached family home. Located on the sought after Norsey Farm Estate, the property is within easy reach of the Billericay High Street and train station, whilst also being in catchment and walking distance of the highly rated Mayflower High School. Additional benefits of this delightful home include a large rear garden, double length integral garage and an in out driveway. The current owners have also previously applied for planning permission to add a large rear extension to the property and although this has since expired, permission was granted (See photos for approved plans)

On entering the property, you are greeted by an entrance hallway which in turn will lead you to two reception rooms located at the front of the home. The first is a considerable size which could be used as a second tv room/study/playroom and benefits from double glazed windows to the front and rear, as well as a large built in storage cupboard. Adjacent to this room is a generous and well-presented living room, boasting a feature fireplace and a large, double-glazed window overlooking the front driveway. Continuing through to the rear of the property, you will find a separate dining room with a set of double-glazed French doors which open onto and enjoy views over the rear garden. Also located at the back of the property is a modern kitchen, comprising of a range of fitted units in a tasteful navy colour, with light contrasting worktops. This well-equipped kitchen boasts some integrated appliances including a dishwasher and wine cooler, whilst also providing space for a large freestanding American style fridge freezer. In addition, the kitchen includes a large freestanding Rangemaster cooker with a gas hob, finished in stylish stainless steel. The accommodation on the ground floor of this impressive home is completed by a modern W/C cloakroom.

Upstairs there are four double bedrooms, with the master bedroom being of considerable size and benefitting from an adjoining en-suite shower room. In addition, this master bedroom boasts a large set of built in wardrobes with a modern finish and a large, double-glazed window which enjoys a stunning outlook over the garden and the woodland beyond. The adjoining en-suite has been tastefully tiled and comprises of a modern three-piece suite with a rainwater shower. Two of the remaining three bedrooms also benefit from built in storage, with the second largest room including a modern set of wardrobes. The third bedroom is a good double room and provides ample space for bedroom furniture, whilst the fourth is currently being used as a spare room/office. A fully tiled and well-appointed family bathroom completes the accommodation in this charming home and comprises of a modern three-piece suite with a shower over a P shaped bath.

Externally and to the rear of the property is a fantastic garden, which is not only a generous size, but also backs onto woodland which provides a beautiful outlook and creates a real sense of calm within an oasis of mature trees. Commencing with a large patio in modern grey stone, the remainder of the garden is laid to lawn and is bordered by various shrubs and flowerbeds. There is plenty of space and potential to extend the property to the rear (STPP), with the owners previously having permission granted to add a large open plan kitchen family room. In addition, the current owners also added a parcel of land to the rear of the garden, providing the option to extend the lawn further and make the garden even bigger. An integral garage can be accessed from the garden and being double in length, the garage provides great storage as well as a utility area with a fitted sink and space for freestanding appliances. The garage boasts an electric roller door, whilst a large side access will lead you to the front of the home where there is a large desirable 'in and out' block paved driveway, providing off street parking for a number of vehicles.

To fully appreciate the size and presentation of accommodation on offer, as well as the potential and the beautiful external areas, a viewing is highly recommended. Call The Property Specialists now and we will be happy to arrange this for you.

Floorplan for Carson Road, Billericay, Essex Floorplan for Carson Road, Billericay, Essex
EPC Graph for Carson Road, Billericay, Essex
X

REQUEST A CALLBACK