Instruction to Let - Norton Place, Ramsden Heath, Billericay, Essex | £1,700 PCM, Fees Apply


Available February 2026

Situated in a quiet cul-de-sac in the popular village of Ramsden Heath, is this well presented three bedroom semi-detached house. The property is well positioned within a short walk of open fields, whilst the village itself is only a short drive from Billericay High Street and mainline railway station, serving London Liverpool Street. In addition, the home is also located close to Ramsden Heath recreation park, which is great for kids. 

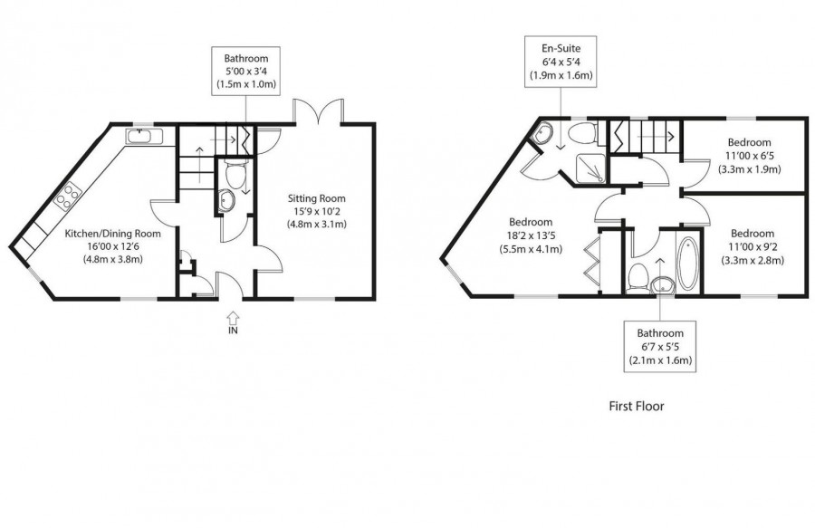
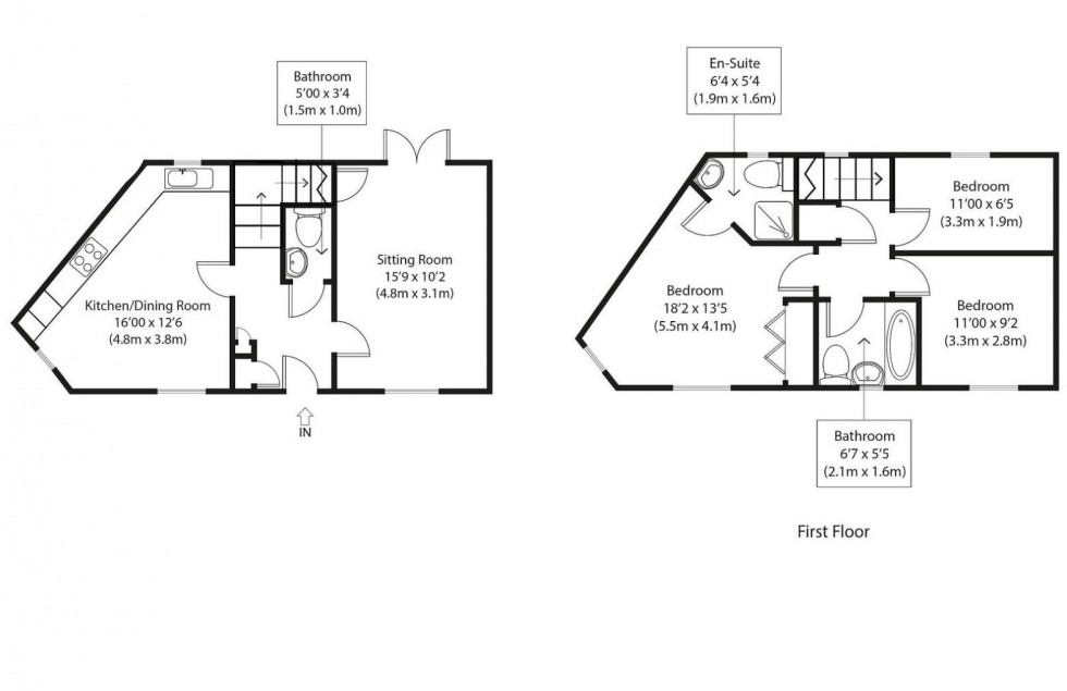
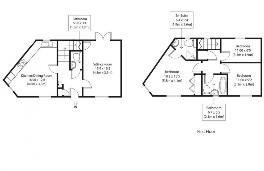
Internally the property is presented to a high standard, with a good size modern kitchen, benefitting from a range of fitted appliances, and a generous living room. The kitchen is a great room for entertaining, whilst the living room enjoys views and provides access to the rear garden. The ground floor accommodation is completed by a separate w/c cloakroom.

To the first floor there are three well presented bedrooms, with the master bedroom benefitting from an en-suite shower room. This is in addition to a modern family bathroom, comprising of a fitted three piece suite.

Outside and to the font of the the property is a tandem car port providing off-street parking for two vehicles. To the rear is a low maintenance garden, neatly presented with laid artificial lawn and a paved patio. In addition there is a garden shed providing extra storage. 

To full appreciate the size and presentation of accommodation on offer, a viewing is highly recommended. Contact us now and we will be happy to provide an application form. 

Floorplan for Norton Place, Ramsden Heath, Billericay, Essex
X

REQUEST A CALLBACK